Wymiary działki - Nieborów

Sprawdź wymiary wybranej działki oraz wymiary budynków które się na niejznajdują. Wyszukaj działkę po identyfikatorze lub adresie (np: 100204_4.0001.473) lub wyszukaj na mapie Geoportal Nieborów. Pobierz raport z wymiarami działki lub bezpłatnie wykonaj pomiary na mapie.

Urząd Gminy Nieborów. Długość i szerokość działki.

Przykładowe informacje z raportu o działce na której znajduje się Urząd Gminy Nieborów dotyczące wymiarów działki oraz budynków znajdujących się na działce. Wyszukaj swoją działkę na mapie Geoportal Nieborów i pobierz raport.

Parametry geometryczne terenu

Obwód 251,87 m
Powierzchnia 3 812,32 m2
Współczynnik kształtu 1,00
Klasa kształtu dobry

Wymiary działki - Urząd Gminy Nieborów

A0 ← 52.07153976, 20.06995112 A1 20,76 m
A1 ← 52.07156891, 20.07025083 A2 14,62 m
A2 ← 52.07169931, 20.07022552 A3 32,45 m
A3 ← 52.07198874, 20.07016933 A4 2,55 m
A4 ← 52.07201145, 20.07016492 A5 73,76 m
A5 ← 52.07192042, 20.06909724 A6 54,17 m
A6 ← 52.07143692, 20.06918635 A7 8,57 m
A7 ← 52.07145236, 20.06930899 A8 8,84 m
A8 ← 52.07146963, 20.06943509 A9 5,86 m
A9 ← 52.07148027, 20.06951902 A10 9,00 m
A10 ← 52.07149782, 20.06964745 A11 18,05 m
A11 ← 52.07153347, 20.06990473 A0 3,25 m

Ryc. 1. Parametry geometryczne terenu. Wymiary działki na kórej znajduje się Urząd Gminy Nieborów

Co zawiera Raport o Działce?

Raport o Twojej działce

Potrzebujesz kompleksowego raportu o Twojej działce podlegającej pod Urząd Gminy Nieborów? Mamy ważne informacje o Twojej działce. Ponad 20 kompleksowo przeanalizowanych tamatów na mapie oraz w formie dokumentu PDF.

Wyszukaj działkę

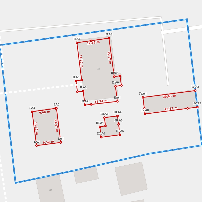
Urząd Gminy Nieborów. Analiza wymiarów budynków na działce

Parametry geometryczne budynku

Obwód 54,28 m
Powierzchnia zabudowy 134,51 m2
Typ budynek gospodarczy
Liczba kondygnacji 1
Budynek # IV

Ryc. 2. Parametry geometryczne budynków. Wymiary oraz położenie budynku - Urząd Gminy Nieborów

Mapa działek Nieborów. Zajdź swoją działkę.

Sprawdź wymiary Twojej działki i współrzędne słupków granicznych oraz budynków. Poznaj też pozwolenia i zgłoszenia budowy w okoliach Twojej działki. Sprawdź miejscowy plan zagospodarowania (mpzp) oraz plan ogólny gminy. Zbadaj zagrożenie powodziowe i uciążliwości (mapa powodziowa). Przeanalizuj tereny inwestycyjne, grunty pod zabudowę. ... Ponad 20 tematów raportu. Wygeneruj raport dla swojej działki.

Wyszukaj działkę